京丹後市 公式 空き家情報バンク

PROPERTY INFORMATION

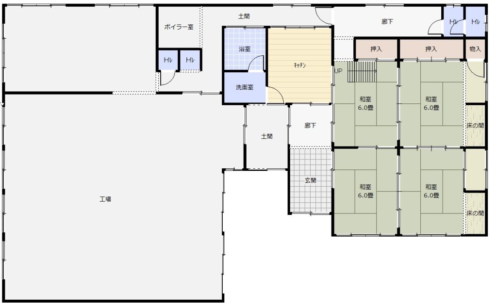
網野町 売建物 1-421(まるふく)

売約済み網野町エリア一戸建て売買 340万円 No.916

360° VIEW

元機織工場の大きなスペースと2階建て住居が一体になった多用途ハウスです。

八丁浜海岸まで徒歩圏、海のある暮らしと創作・仕事の拠点づくりにも最適です。

物件情報SUMMARY

エリア網野 区分一戸建て[売買]
所在地〒6293101 京丹後市網野町網野738-3
間取り8K+倉庫(元工場) 構造木造瓦葺2階建
延床面積291.41㎡ 敷地面積330.71㎡
築年月97年 補修不要
売買価格340万円
共益費 備考本物件は建基法42条2項道路に接道。再建築時は道路中心線から2.0m後退(=幅員4.0m確保)のセットバック要。
補助金情報移住者向けリフォーム補助金対象

特徴・設備FEATURE

特徴海の近く, まちなか, トイレバス別, 駐車可, ペット可, 楽器使用可, 補助金対象
ガスプロパンガス※別途ご契約 台所あり
水道接続済み 下水道未接続(前面道路に配管有)
風呂あり トイレあり(汲み取り式)
テレビ回線あり ネット環境別途ご契約が必要です
オール電化なし なし
物置あり 駐車場有り 3台まで可

主要施設FACILITIES

小学校区網野北小学校区 中学校区網野中学校区
最寄駅京都丹後鉄道 網野駅
最寄バス停丹海バス「網野」停留所
市区町役場網野市民局(アミティ) 病院ふるさと病院
その他施設
スーパー(フレッシュバザール網野店):

その他の特記事項

本物件は建基法42条2項道路に接道。再建築時は道路中心線から2.0m後退(=幅員4.0m確保)のセットバック要。

物件地図Google Map

夕陽のロングビーチと職人のまち 網野町

網野町は観光地として発展してきた町。鳴き砂で有名な琴引浜、夕日が綺麗な夕日ヶ浦、サーファーが集まる八丁浜など、美しいロングビーチが多数あります。冬になると松葉ガニ料理を出す旅館や民宿がたくさんあるのも網野の特徴です。また絹織物「丹後ちりめん」の関連の職人をはじめ、様々な職人が集まる町でもあります。

この物件のお問い合わせ先

まるふく産商株式会社

〒629-3101 京都府京丹後市網野町網野747   TEL : 0120-029-150   FAX : 0772-72-4331