三宅の住宅 クサモト№4-0119
丹後町エリア一戸建て売買
138万円 No.945
物件情報SUMMARY
| エリア | 丹後 |
区分 | 一戸建て[売買] |
| 所在地 | 〒627-0212 京丹後市丹後町三宅小字山崎 |
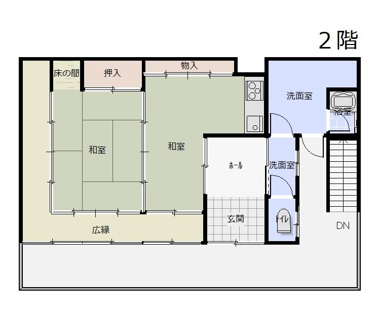
| 間取り | 3DK |
構造 | 鉄骨造瓦葺2階建 |
| 延床面積 | 76.49㎡ |
敷地面積 | 51.95㎡ |
| 築年月 | |
補修 | 大幅に必要(入居者負担) |
| 売買価格 | 138万円 |
| 共益費 |
|
備考 | |
| 補助金情報 | 京都府移住促進特別区域 |
特徴・設備FEATURE
| 特徴 | 山の近く, トイレバス別, 駐車可 |
| ガス | プロパン |
台所 | 専用 |
| 水道 | 市水道 |
下水道 | 前面道路有(敷地内無し) |
| 風呂 | ユニット |
トイレ | 汲み取り |
| テレビ回線 | ケーブル |
ネット環境 | 契約必要 |
| オール電化 | なし |
庭 | 無し |
| 物置 | |
駐車場 | 有り 3台まで可 |
主要施設FACILITIES
| 小学校区 | 丹後小学校 |
中学校区 | 丹後中学校 |
| 最寄駅 | 峰山駅 |
| 最寄バス停 | 丹海バス大下停 |
| 市区町役場 | 丹後市民局 |
病院 | 弥栄病院 |
| その他施設 |
|
その他の特記事項
瑠璃色の入り江と漁師のまち 丹後町
ダイナミックな自然と穏やかな漁村の町、丹後町。断崖絶壁のすぐそばで米が育ち、深いブルーの海で漁が盛んに行われています。北近畿屈指ブランドがに「間人がに(たいざがに)」のほか、様々な魚介類が水揚げされます。歴史が深く、古代からひらかれた土地だった丹後町には、縄文時代以降の遺跡も点在しています。