京丹後市 公式 空き家情報バンク

PROPERTY INFORMATION

一区水辺の住宅 クサモト№2-0132

久美浜町エリア一戸建て売買 650万円 No.976

360° VIEW

久美谷川と久美浜湾どちらも眺めれる立地。天気の良い日の水辺は気持ちいいですよ!

水辺の景色を堪能下さい。

物件情報SUMMARY

エリア久美浜 区分一戸建て[売買]
所在地〒629-3410 京丹後市久美浜町小字東本町
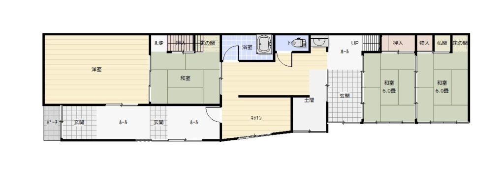
間取り9K 構造
延床面積197.55㎡ 敷地面積109.09㎡
築年月 補修多少必要(入居者負担)
売買価格650万円
共益費 備考0.5~1.0m未満の洪水浸水想定区域
補助金情報久美浜町全域京都府の特区となります。

特徴・設備FEATURE

特徴海の近く, まちなか, 水洗トイレ, トイレバス別, 補助金対象
ガスプロパンガス 台所専用
水道市水道 下水道接続済み
風呂専用 トイレ水洗トイレ
テレビ回線ケーブルテレビ 申し込み必要 ネット環境申し込み必要
オール電化なし
物置有(建物内) 駐車場無し

主要施設FACILITIES

小学校区久美浜小学校 中学校区久美浜中学校
最寄駅久美浜駅
最寄バス停稲葉本家停
市区町役場久美浜市民局 病院久美浜病院
その他施設

その他の特記事項

景観形成住民協定区域内

物件地図Google Map

恵みの内湾とフルーツのまち 久美浜町

穏やかで美しい、湾を取り囲むように開けた町、久美浜町。かつては丹後地方の中心地であり、久美浜湾を起点に日本海に通じる交通の要だったとも言われています。農業・漁業が中心なので、よくある田舎町…と思いきや、最近ではどことなくおしゃれ感漂う、明るく開けた町に変化しています。

この物件のお問い合わせ先

株式会社クサモト

〒629-3101 京都府京丹後市網野町網野220-1   TEL : 0772-66-3333   FAX : 0772-66-3000